
QUARTIER SAINT PHILIBERT
PLOMELIN (29) - 2013 > 2023
MAÎTRISE D’OUVRAGE : SAFI (Finistère Habitat)
MAÎTRISE D'ŒUVRE : TLPA Mandataire, Onésime Paysage, Infraservices VRD, Nowatt (thermicien)
À 10 km de Quimper, la commune de Plomelin est attractive. Pour accueillir de nouveaux habitants, elle s’est lancée en 2012 dans la définition d’un projet de nouveau quartier multi-sites : le quartier « Saint Philibert ». Cette démarche est née d’une volonté politique forte de faire « mieux » et « autrement » afin de concevoir un projet d’aménagement ambitieux, accessible et intégré au tissu urbain existant.
La proposition de l’équipe pour cet aménagement fut claire et ambitieuse : aller vers un nouveau modèle de quartier d’habitats.
Après une exploration du paysage pour comprendre son fonctionnement d’ordre technique et sensible, une concertation a été menée avec des usagers et habitants pour vérifier, conforter et enrichir cette analyse du site.
Pour cela, plusieurs ateliers, balades publiques, entretiens, cafés débats ont été réalisés.
Le projet a été retenu par le Ministère de l’écologie du développement durable et de l’énergie pour participer à « 1000 paysages en actions ».
Le résultat de ce travail a conduit à la conception d’espaces publics adaptés au futur quartier.
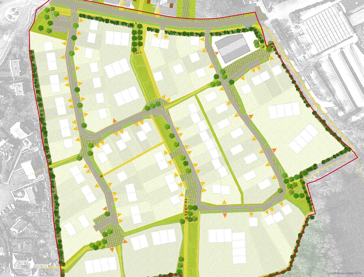
Un des enjeux fort du projet Saint-Philibert est d’intégrer le futur quartier dans le paysage rural existant, véritable patrimoine de la commune (sentiers et chemins creux, paysage de bocage, paysage rural).
De nombreux espaces publics sont créés et reliés à un espace central majeur. Au-delà de cet espace, véritable parc linéaire qui se veut fédérateur, le paysage existant du site est revisité pour proposer des espaces publics adaptés, utilisés, vivants.
L’ensemble de ces espaces publics est relié aux espaces verts creux existants afin de renforcer leurs maillages, utilisations et usages.
Le choix a été fait de gérer les eaux de pluies de manière intégrée (avec l’expertise d’Infraservices) ce qui oriente l’aspect des espaces publics : des espaces verts « creux », des noues ou fossés le long de chaque route (routes ouvertes à la circulation ou sentiers piétons). Ces aménagements ont une fonction précise pour la gestion des eaux, ils seront traités et plantés en conséquence. Ils participent grandement à l’ambiance du futur quartier.
Les talus et les haies vives sont très présents aux abords immédiats du site, parfois au milieu du site. Ils contribuent à l’originalité du site et à la richesse biologique du milieu. Un travail précis a été mené pour valoriser le patrimoine arboré du site : élagage, taille, abattage des arbres en mauvaise santé, replantation des talus... Cette démarche menée avec des spécialistes de l’arbre est l’une des originalités du projet.
 
 
 
 
 
 
 
 
 
 
